在完成新的无堵塞纸浆泵的所有部件的维修和更换后,检查并确保其满足技术要求后,便组装了整个机器。组装新的无堵塞纸浆泵是一项非常重要的任务。恢复离心泵的工作性能是重要的一步。安装质量的好坏直接关系到纸浆泵的性能和无堵塞纸浆泵的使用年限。无堵塞纸浆泵即使其部件的质量完全合格,如果组件的质量不符合技术要求,也将无法正常工作,甚至会发生事故。
安装工作完成后,整机应安装在底座上,并进行对准;如果安装了新的无堵塞纸浆泵,则应先将机器安装上,并进行校正和灌浆,然后再安装泵和电动机,再进行校准,将泵连接到管道。
为了顺利进行组装工作,应首先阐明组装要求。
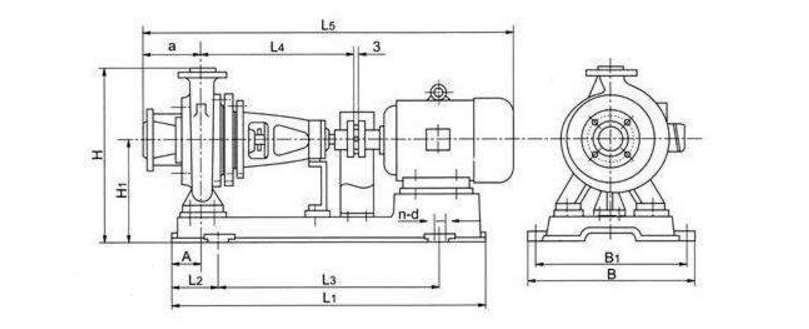
无堵塞纸浆泵的安装图
安装技术要求
1.安装合格的纸浆泵,应轻快地转动,不得有机械摩擦。
2.泵轴不应产生轴向运动。
3.无堵塞纸浆泵的半联轴器与电动机的半联轴器具有符合技术要求的同轴度偏差。
4.添加的润滑油和灌入油脂时应适合使用,应符合使用说明书的要求。
5.设备清洁,无灰尘,无油污。
6.底座清洁,表面无水,无废液,环境整洁。
安装前的准备
1.仔细阅读无堵塞纸浆泵的相关技术数据,如结构图和安装图,使用说明。
2.熟悉泵的装配质量标准。
3.检查泵的要求是否齐全,质量是否合格。
4.准备所有使用的工具。
5.准备好无堵塞纸浆泵所需的消耗品,例如润滑油等。
安装顺序
以无堵塞纸浆泵为例,安装应按以下顺序进行。
1.安装轴组,把轴承安装在泵轴上。
2.将轴组装到泵体内。
3.将泵体安装在机座上。
4.将泵盖单独放在泵上并安装叶轮。
5.将泵盖安装在泵体上。将泵体安装在机座上。
6.装入填料。
7.对准联轴器。
以上是湖南圣博凯斯泵阀对无堵塞纸浆泵的安装进行的简要总结。
