单级双吸卧式离心泵是双吸泵的全称,是离心泵的一种结构形式。离心泵可以分为单级单级离心泵和单级双吸离心泵。以下讲解单级双吸离心泵的安装前的准备工作和安装顺序。
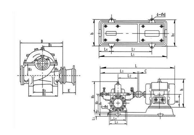
单级双吸离心泵安装尺寸图
单级双吸离心泵安装前的准备工作
1.准备所需的使用工具和起重机械。
2.检查双吸中开泵和电机有没有损坏情况。
3.按照单级双吸离心泵安装尺寸图检查所由配件。
单级双吸离心泵安装图
单级双吸离心泵安装顺序
单级双吸离心泵分为立式和卧式安装,安装方法大致是一样的,下面讲解卧式离心泵带底座的安装顺序。
1.先把底座安装在地基上,可以用垫铁把地脚螺栓垫高20~40mm,找平后填充水泥。
2.用水平仪检查泵座安装位置是否水平,找平后把地脚螺栓螺母扳紧,把双吸泵底座和地脚螺栓孔用水泥灌入。
3.等到水泥自然风干后,再检查水平度。
4.把双吸中开泵泵座的支撑面、泵脚和电机脚清除,把中开泵和电机放到底座上。
5.调节双吸离心泵使轴水平,找平后上紧螺母,防止窜动,等到调节完成后,再安装电机,在不稳的地方安装上垫板。
6.单级双吸离心泵和电机联轴器之间留有一定的间隙,把钢尺放在联轴器上检查,查看轴心和电机轴心线是否重合,假如不重合,可以垫上薄铁皮,使电机联轴器和钢尺相符合。
离心泵厂家将为您简要介绍单级双吸离心泵的安装顺序,希望对广大用户有所帮助。
